Property Details
36 Glebe Place, KINGSWOOD NSW 2747
LeasedDescription
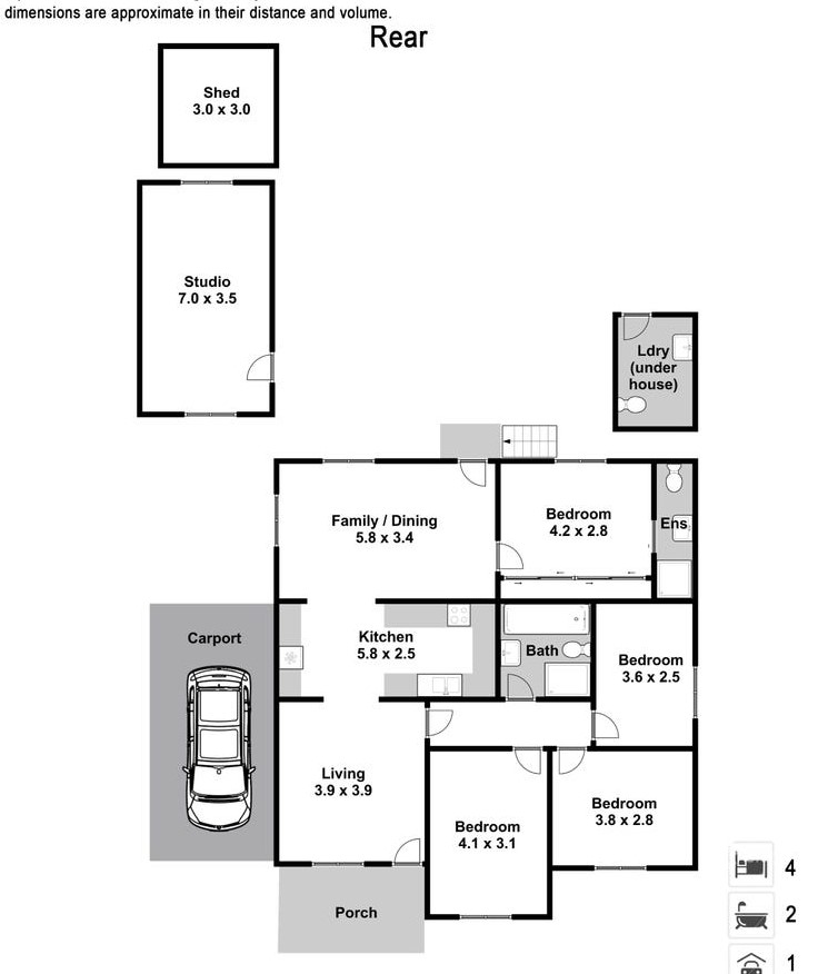
4 Bedroom Home + Retreat Available for Rent
House - KINGSWOOD NSW
Located only a moment away from the Nepean Hospital, Kingswood Train station & Western Sydney University.
Features include:
– Sizable kitchen with dishwasher, oven, and plenty of storage space / bench space
– 2x living areas
– Master Bedroom with ensuite & built-ins wardrobe
– All bedrooms are well sized
– Neat and tidy bathroom with shower & Tub
– Air conditioning
– Single Lockable garage / Retreat
– Garden Shed
Available now
Rent $499 Per week
Located within close proximity to;
– Nepean Hospital 4min
– Kingswood Train Station 2min
– Western Sydney University 6min
– St Dominic’s College 1min
– Penrith Selective High School 3min
– Penrith Westfield 5min
– Western Sydney International Airport 18min
– Caddens Corner (Woolworths, BWS, childcare )
This property is a must to inspect to avoid disappointment. PLEASE APPLY ONLINE TO REGISTER YOUR INTEREST. YOUR EXCLUSIVE AGENT AB PROPERTY CONSULTANTS rentals@abproperties.com.au
Property Features
- House
- 4 bed
- 2 bath
- 1 Parking Spaces
- Air Conditioning
- Pet Friendly
- Carport
- 2 Open Parking Spaces
- Dishwasher
- Shed












































Comments are closed.